Na fotografiji je osnovna šola v Vremenskem Britofu, ki jo letos obiskuje 38 otrok iz okoliških krajev. Divaška občina je na razpisu Ministrstva za vzgojo in izobraževanje pridobila nekaj manj kot 600.000 evrov za prizidavo. Investicijo, ki bo z davkom stala več kot milijon evrov, načrtujejo v letih 2028 in 2029.
LE NEKAJ DESET JIH JE, A POTREBUJEJO TELOVADNICO: Bo divaški občini uspelo na dveh razpisih?
Slovenija

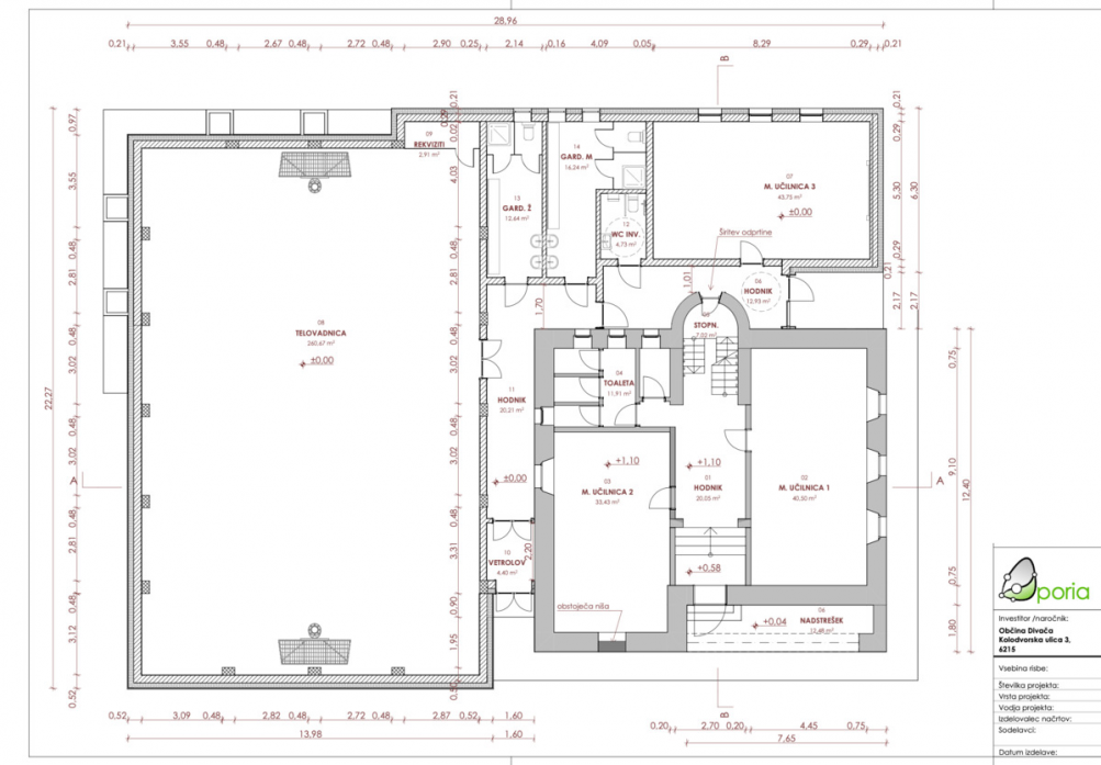
Gre za razpis Ministrstva za vzgojo in izobraževanje za sofinanciranje investicij v vrtcih in osnovnih šolah v obodbju od leta 2026 do 2029. Divaška občina je za prizidavo podružnične šole Vreme dobila 593.807,99 evra nepovratnih sredstev. Skupna vrednost investicije znaša 868.699,56 evra oziroma 1.038.268,54 evra z ddv.
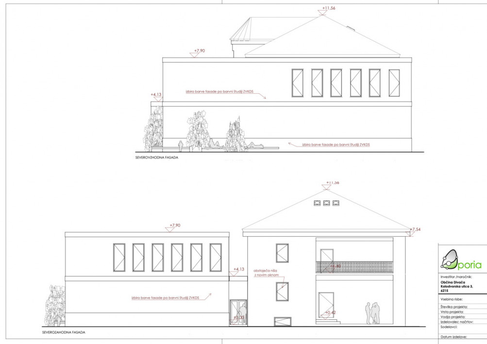
K šoli bodo prizidali športno dvorano, dodatne učilnice, garderobe in sanitarije. Trenutno namreč nimajo notranjih prostorov za športno vzgojo, prav tako nimajo večnamenskega prostora. Na divaški občini pravijo, da podružnica v Vremski dolini omogoča otrokom šolanje v domačem okolju, s čimer odpadejo tudi vsakodnevne vožnje v druge oddaljene šole. Od Vremske doline do Divače je približno sedem kilometrov.

Poleg tega bodo prostori služili tudi kulturnemu, športnemu in družabnemu dogajanju v kraju. "Občina Divača je trenutno v postopku pridobivanja gradbenega dovoljenja, v nadaljevanju pa bo kandidirala tudi za dodatna sredstva Ministrstva za gospodarstvo, turizem in šport," so navedli na občini.
"Šolo v letošnjem šolskem letu obiskuje 38 otrok, kar je največ do sedaj," pravi vodja podružnice Katja Kovačič. Glede na število otrok v okoliških krajih zaenkrat kaže, da se bo število šolarjev v prihodnjih letih povečalo, kar pa je z gotovostjo nemogoče napovedati, saj je pri tem pomembnih več dejavnikov.
